Maison à Aspelt
Aspelt
132m2
3 chambres
Maison
920 000€

+5




+2



Description
Dans un quartier résidentiel calme et recherché d'Aspelt, cette maison libre des quatre côtés séduit par son environnement paisible, son jardin et ses volumes généreux. Elle constitue une opportunité rare pour celles et ceux qui souhaitent investir dans une propriété à fort potentiel et la personnaliser selon leurs envies.
La maison propose un grand séjour avec cheminée, une salle à manger conviviale, une cuisine séparée ainsi que plusieurs chambres spacieuses et lumineuses. Les espaces extérieurs sont un véritable atout : une véranda à l'avant, une véranda à l'arrière donnant sur le jardin et une piscine couverte, idéale pour profiter toute l'année après rénovation.
Le sous-sol offre de multiples possibilités grâce à ses espaces de stockage, une salle de douche supplémentaire et un garage pratique, complété par un carport fermé et plusieurs emplacements extérieurs.
Confort moderne avec climatisation intégrale, moustiquaires et système d'alarme, cette maison allie praticité et qualité de vie.
La localisation est idéale : crèche, école primaire, commerces, supermarché, médecin et arrêt de bus sont accessibles en quelques minutes seulement.
Cette propriété, nécessitant des travaux de rénovation, représente une belle opportunité pour des acquéreurs souhaitant créer un cadre de vie unique et adapté à leur mode de vie, dans une zone résidentielle calme et privilégiée.
Pour plus d'informations ou pour organiser une visite, contactez-nous dès maintenant au 26 44 50 50 ou par e-mail à sales@immo-future.lu
Surface: 132 m²
Surface totale : 191.6 m²
Énergie de chauffage : Fioul / Mazout
Type de chauffage: Radiateur
Type d'eau chaude : Chaudière
État : À rafraîchir
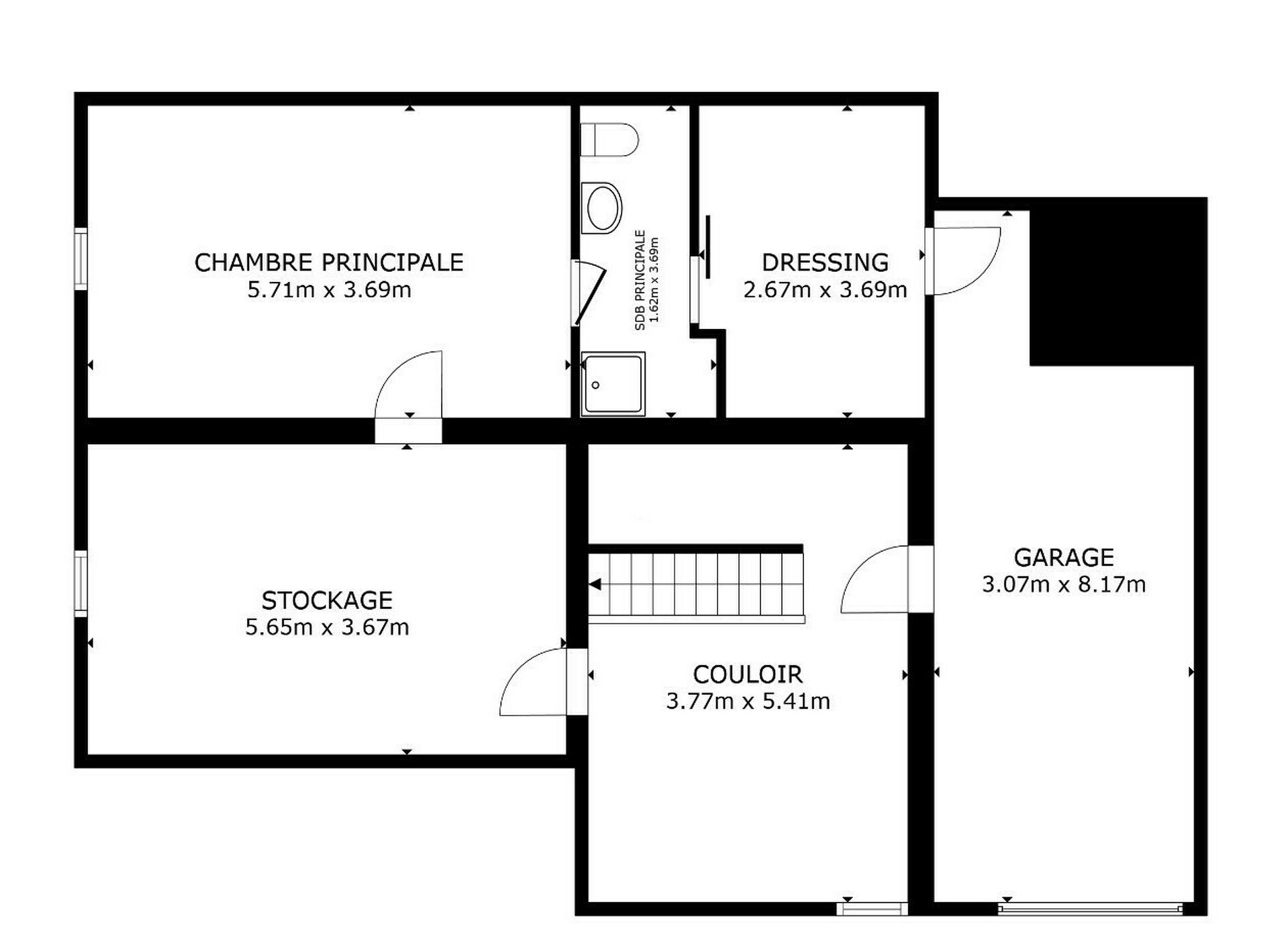
Surfaces
1 Débarras
1 Stock / Réserve
1 Dressing
1 Couloir
1 Garage
1 Véranda
1 Véranda
1 Séjour
1 Salle à manger
1 Chambre
1 Chambre
1 Salle de bains
1 Chambre
1 Piscine intérieure
1 Salle de douche / toilettes
1 Salle de bains / toilettes
La maison propose un grand séjour avec cheminée, une salle à manger conviviale, une cuisine séparée ainsi que plusieurs chambres spacieuses et lumineuses. Les espaces extérieurs sont un véritable atout : une véranda à l'avant, une véranda à l'arrière donnant sur le jardin et une piscine couverte, idéale pour profiter toute l'année après rénovation.
Le sous-sol offre de multiples possibilités grâce à ses espaces de stockage, une salle de douche supplémentaire et un garage pratique, complété par un carport fermé et plusieurs emplacements extérieurs.
Confort moderne avec climatisation intégrale, moustiquaires et système d'alarme, cette maison allie praticité et qualité de vie.
La localisation est idéale : crèche, école primaire, commerces, supermarché, médecin et arrêt de bus sont accessibles en quelques minutes seulement.
Cette propriété, nécessitant des travaux de rénovation, représente une belle opportunité pour des acquéreurs souhaitant créer un cadre de vie unique et adapté à leur mode de vie, dans une zone résidentielle calme et privilégiée.
Pour plus d'informations ou pour organiser une visite, contactez-nous dès maintenant au 26 44 50 50 ou par e-mail à sales@immo-future.lu
Surface: 132 m²
Surface totale : 191.6 m²
Énergie de chauffage : Fioul / Mazout
Type de chauffage: Radiateur
Type d'eau chaude : Chaudière
État : À rafraîchir
Surfaces
1 Débarras
1 Stock / Réserve
1 Dressing
1 Couloir
1 Garage
1 Véranda
1 Véranda
1 Séjour
1 Salle à manger
1 Chambre
1 Chambre
1 Salle de bains
1 Chambre
1 Piscine intérieure
1 Salle de douche / toilettes
1 Salle de bains / toilettes
Détails
Ref. : 1004454
Énergie
Indice énergétique G
DPE énergie G
Extérieur
Piscine Oui
Jardin Oui
Intérieur
Buanderie Oui
Piscine Oui
Attention : Si l’adresse exacte n’est pas renseignée, le centre de la localité sera indiqué sur la carte.